Details

Erdgeschoss Gewerbeeinheit (Gewerbe)

<< Zurück

Hauptkriterien

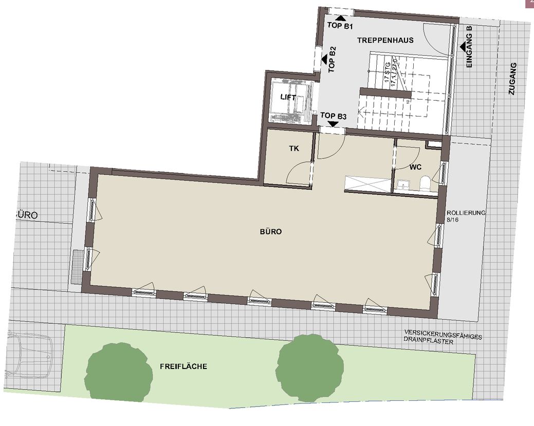
  • Büro/Praxisfläche: 61,86 m²
  • Kaufpreis: 339.000,00 Euro

Objektbeschreibung

In Bad Reichenhall entsteht ein modernes Wohnprojekt, das zeitlose Architektur mit hohem Wohnkomfort vereint.

Das Bauvorhaben umfasst ein Mehrfamilienhaus mit sieben Wohnungen sowie ein Wohn- und Geschäftshaus mit acht Wohnungen und drei Gewerbeeinheiten.

Sämtliche Wohnungen bestechen durch eine optimale Raumaufteilung und sind über einen Aufzug bequem und barrierefrei erreichbar.
Großzügige Fensterflächen sorgen für lichtdurchflutete Räume und eine angenehme Wohnatmosphäre. Hochwertiger Parkettboden in den Wohnbereichen und großformatige Fliesen in den Bädern sowie Vorräumen, kombiniert mit einer energieeffizienten Fußbodenheizung, schaffen ein exklusives und behagliches Ambiente. Terrassen und Balkone erweitern den Wohnraum ins Freie und bieten viel Platz, um die Sonne in vollen Zügen zu genießen.

City-Wohnen Bad Reichenhall – ein harmonisches Zusammenspiel aus komfortablem Wohnen, moderner Architektur und einer erstklassigen Lage inmitten einer einzigartigen Naturkulisse.

Mehr...

* Irrtum bei Preisen sind vorbehalten!

<< Zurück